Vision Pakistan is a charitable initiative that provides a ‘second chance’ to disadvantaged young men aged 16 to 25 who have experienced aggression, depression, drug use, or criminal activity. Through a comprehensive, year-long program, participants are trained as master tailors while also receiving education in literacy, life skills, and a foundational, peace-oriented understanding of Islam to support their social reintegration.



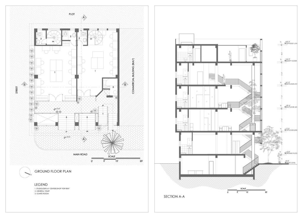
Located in a densely populated peri-urban district of Islamabad, the new facility accommodates 40 to 50 students along with tutors, management, and support staff. The program is supported by a spatial configuration that includes five adaptable classrooms, a dining area, recreational zones, management offices, limited staff accommodation, exhibition areas, retail units, and a rooftop prayer space complemented by a student-maintained kitchen garden. Several areas within the facility are designed to be rentable as a means of generating additional income.
At the heart of the building is a central atrium featuring a tall anchor tree, which enhances natural light, passive ventilation, and visual continuity while contributing to a tranquil atmosphere. The building’s services are left exposed to facilitate maintenance, and select windows are adorned with pierced metal screens (jaali) that provide solar shading and privacy. These screens introduce vibrant color and ornamental geometry inspired by traditional Pakistani and Arab crafts, as well as the modernist architecture of 1960s Islamabad. The colors reflect local vernacular aesthetics and are intended to evoke optimism and cultural resonance.












