The transformation of Pardubice Castle and the relocation of the regional gallery to the former Automatic Mills mark the culmination of a comprehensive master plan (TRANSAT architekti, 2017), overseen by Ladislav Lábus and Josef Pleskot. This strategy aimed to redefine the castle as the accessible “Pernštejn Residence” while recommending the gallery’s move from the castle’s outbuildings to a more suitable location. The preferred site was Josef Gočár’s Automatic Mills—a landmark of early modern Czech industrial architecture—chosen for its riverside setting, generous interiors, and cultural value, which earned it national heritage status.
In 2018, the Pardubice Region acquired the building from the Smetana family, who had initiated a site-wide redevelopment vision with architect Zdeněk Balík, including the selection of design teams and investment partners.

While the mill’s exterior conveys a monolithic presence, its interior reveals a narrower volume with a compact 4×4 meter grid. Its operational logic unfolded vertically: silos on the south side, followed by grain cleaning, milling, bran storage, and flour warehousing. Gočár’s architectural approach encased this process in exposed brick and minimal ornamentation, blending early modernist (1910–11) and national style (1920–24) sensibilities. Though the original equipment from Josef Prokop & Sons was largely dismantled, select elements were preserved for display.

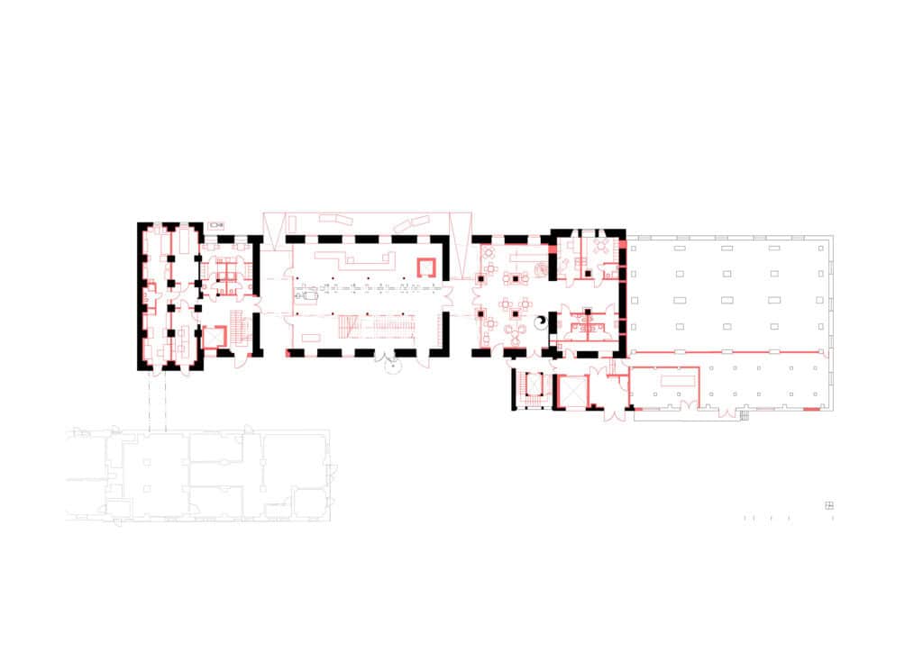
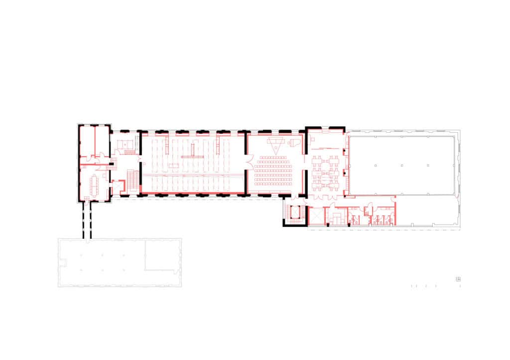
Transforming the unheated industrial structure into a climate-controlled, museum-grade gallery necessitated interventions that balanced preservation with technical performance. The spatial concept follows the mill’s original sequence of vertical zones, centralizing visitor circulation in the five-story milling hall with its original wooden ceilings and slender steel frame. To the south lie the main public spaces; to the north, reinforced concrete volumes house the collection storage and staff workspaces.
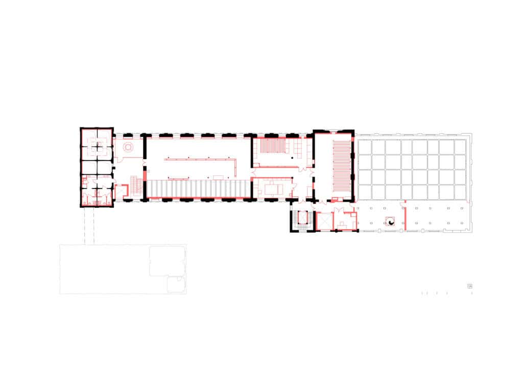
Strategic vertical openings between floors reintroduce the mill’s former spatial fluidity. Ceiling heights increase with each level, culminating in two expansive floors for temporary exhibitions and a multifunctional hall with a rooftop terrace. While the city-facing façade retains all original windows, the courtyard side has been reconfigured to accommodate uninterrupted exhibition walls behind sealed windows. The upper exhibition halls span nearly ten meters in height and incorporate a glass floor, while skylights above filter daylight through three levels of space.


The gallery’s integration into the urban fabric hinges on its relationship with surrounding public spaces. Access is provided through Gočár’s symbolic archway from the new square between the silo towers. Previously service-oriented, the courtyard has been reimagined as a civic plaza linked to the riverfront by two new interior passageways. These flank the former milling hall, now serving as the gallery entrance, and a café located in the northern wing. A mezzanine bridges both corridors and leads to the exhibition levels, facilitating a fluid spatial transition from city to gallery.
Two original staircases were preserved and reinstated: Gočár’s stone stair (1910–11), returned to its historic position, and a 1950s concrete stair within the flour silo, complemented by new elevators. The building’s core materials—brick, steel, wood, and concrete—remain largely visible. Due to fire regulations, the steel frame of the milling hall was encased, though the wooden ceilings were retained. Salvaged wood from the original beams was repurposed into a new entrance staircase.


New rooftop climate systems are recessed below the parapets, preserving the building’s silhouette. Historic windows were paired with interior double-glazed panes to ensure controlled ventilation and solar protection. Skylights feature adjustable louvers, and the depositories use blind windows to safeguard artworks.
Later structural additions such as transformer units and sheds were removed to restore the mill’s original form. Where appropriate, remnants of the old milling apparatus have been reintegrated into the design, enriching the spatial narrative.


The conversion addresses both environmental and security risks. With the building perched just above the 100-year flood line, the design integrates fire prevention (water mist in public zones, gas suppression in storage), HVAC redundancy, and climate control systems tailored for both centralized and local operation. Water-bearing systems are excluded from exhibition and storage areas to prevent damage. Heating solutions include both hot water and electric floor systems, and ventilation incorporates both mechanical and natural methods.
The current renovation excludes the 1950s flour silo, now reserved for potential future gallery expansion, and the nearby 1920s grain silo, also designed by Gočár. The latter has been restored separately by the Automatic Mills Foundation with Prokš Přikryl architekti. Adjacent public areas and a new polytechnic workshop and city gallery were designed by Jan Šépka and his team, complementing the gallery’s integration into a dynamic cultural campus.















