Although small in scale, this project was a comprehensive practice for the team in agricultural and cultural tourism. Like most projects in this field, it involved learning through experience, with challenges and revisions along the way. In the end, thanks to collective cooperation, the result was playful and enjoyable, much like the name “Down in the Clouds ”.
Introduction
Dun’ao Village (墩岙村) is nestled inland among low hills in Sizhoutou Town, known for it’s coastal scenery. The term “岙 (ào)” embodies the notion of a small valley enclosed by mountains. At the conception of the project, the team believed it was important to capture the sense of serenity and peace among the farmlands surrounded by hills. Instead of typical architectural frameworks, the project sought to express these sentiments through a series of short poems and illustrations. This abstract and reductive approach prompted a reconsideration of the relationship between the body and nature, revealing the potential for it to be lighthearted and playful in nature.
The new structures are located in place of various abandoned structures that stood in the field, including old billboards, utility buildings and storage buildings. Practice on Earth & Increments Studio investigated material systems that were both available and feasible for the project timeline and budget, ultimately selecting a combination of steel containers and inflatables. Being confident that these systems allowed for flexibility and quick installation. This prompted them to explore how these seemingly disparate elements could be integrated to create playful and distinctive spatial experiences.


i. The Cloud Cafe
The first site is located at the entrance to the farmland, where an old utility building had long been unused. The site naturally called for a newly defined “landmark” at its gateway. The Cloud serves not only as a visually iconic concept with strong public appeal, but also creates a large cantilevered space beneath the inflatable. This sheltered area offers shade and rain protection for various activities—without disturbing the surrounding farmland.
Steel containers are traditionally prefabricated off-site into standardized sizes to meet the requirements of their contents and transportation logistics. Instead of reusing a standard ‘off-the shelf’ container, the containers for this project were customized with standardized steel components and adapted to function as occupiable structures. Within this 3×3×8m standard tower unit, the team designed a compact coffee station to serve the outdoor platform beneath the “cloud.” A viewing deck atop the tower—accessible only by passing through the “cloud”—offers a unique perspective of the surrounding mountains and rice fields.


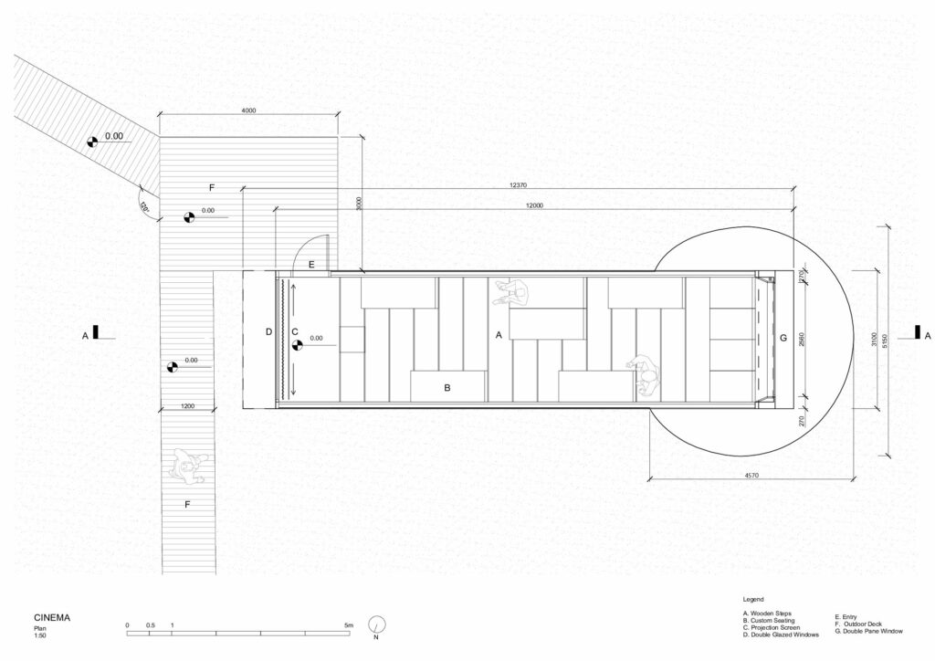
ii. The Leaning Cinema
The second intervention is located at an existing billboard. The client wanted to create a climate-controlled salon space where visitors could rest or gather across all seasons, even through winter and summer. Once again prioritizing minimal impact on the farmland, the container was tilted at a 15-degree angle so that the structure only uses two points of support, creating a slope for stepped interior space for screenings. These supporting columns are wrapped in custom inflatable rings—not only concealing the structural elements and AC access points, but also adding a playful visual twist: the heavy container appears to lean casually against soft, balloon-like forms, creating curious unfamiliarity in scale and material.
The screening room covers just over 30 square meters—small, but fully equipped. The project integrates the screen, projector, speakers, air conditioning, and other systems into the design. Wood wool panels serve both as acoustic treatment and as decorative finishes for the walls and ceiling. On the floor beyond the standard wooden steps, curved backrests were custom designed with ergonomic forms, shaped to fit the body, allowing visitors to recline comfortably. This detail aligns perfectly with the laid-back spirit of the “Leaning Cinema.”




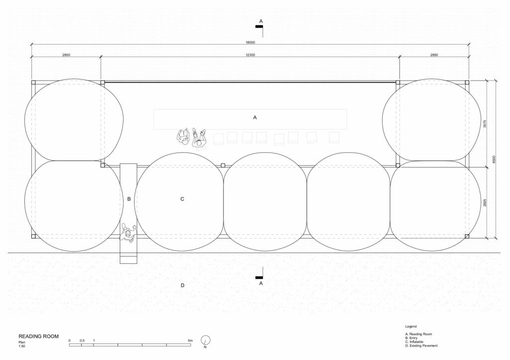
iii. The Secret Reading Room
The third site is another unused utility building, located at the foot of the hills. Quiet and with an open view, it was ideal for transforming into a reading space above the farmland. For this site, Practice on Earth & Increments Studio sought a third way to connect inflatable forms with containers. The design arrived at seven spherical inflatables placed within a steel frame elevated above the rice fields. These soft spheres form a circular “wall” without a door, where visitors must part them to enter. Many visitors later remarked that it wasn’t until their bodies touched the inflatables, that they realized the spheres weren’t solid, but soft, bouncy balloons. This tactile surprise is something conventional building materials rarely offer.
The reading room is a semi-outdoor space, where the metallic materials—aluminum panel ceiling, stainless steel desks, and gridded floor panels—contrast strikingly with the inflatable’s smooth, white, and rounded form, creating a blend of cool austerity and playful softness. In hot weather, the spheres become especially plump and taut due to the higher temperature. Bright sunlight from the south side, once filtered, enters beneath the roof and, together with the semi-reflective ceiling surface, creates a unique shadow effect.




Technique, Experiment & Local Construction
Inflatables are often used in temporary installations, but in this project, they were conceived as a permanent part of the architecture. This unconventional approach posed significant challenges in terms of durability, maintenance, and the formal expression of the concept. To address these, the team dedicated substantial time to research during the implementation phase and carried out multiple rounds of prototyping in close collaboration with the manufacturer.

Due to differing site conditions, different inflation methods were used for each of the three points. For the Cloud Cafe its large size and need to retract in bad weather led the project team to adopt a continuously inflated PVC mesh system. With air vents along its 2m-high sides and 100㎡ base, two blowers maintain internal pressure—ensuring stability even if punctured, and cutting material weight in half compared to sealed inflatables.
From the initial 1:20 handmade model to the 1:4 inflatable prototype at the factory, and finally the full-scale 1:1 construction, the process not only tested the feasibility of inflating at such a large scale, but also served as repeated rehearsals of the on-site assembly sequence—an essential consideration in design for procurement-based projects.



For the cinema and the reading room, since both inflatables are fully rounded spheres, sealed, thickened PVC with seamless welding was used to achieve a smooth, glossy surface. During the 1:2 prototyping of the cinema inflatable, several unexpected issues emerged: the combined weight of the material and air caused noticeable sagging, and it was challenging to ensure the ring-shaped tail closed tightly after inflation. These problems were gradually resolved through multiple rounds of scale adjustments and fabrication refinements with the manufacturer.

Although the main structure and inflatables were prefabricated, on-site work was still needed, like the ceiling, railings, and inflatable installation. Early errors and unfamiliar methods made communication more crucial than the drawings. After nearly a month, the result matched the plan, and local workers, once skeptical, acknowledged, “It really looks good.”
Although small in scale, this project was a comprehensive practice for the team in agricultural and cultural tourism. Like most projects in this field, it involved learning through experience, with challenges and revisions along the way. In the end, thanks to collective cooperation, the result was playful and enjoyable, much like the name “Down in the Clouds ”.



















