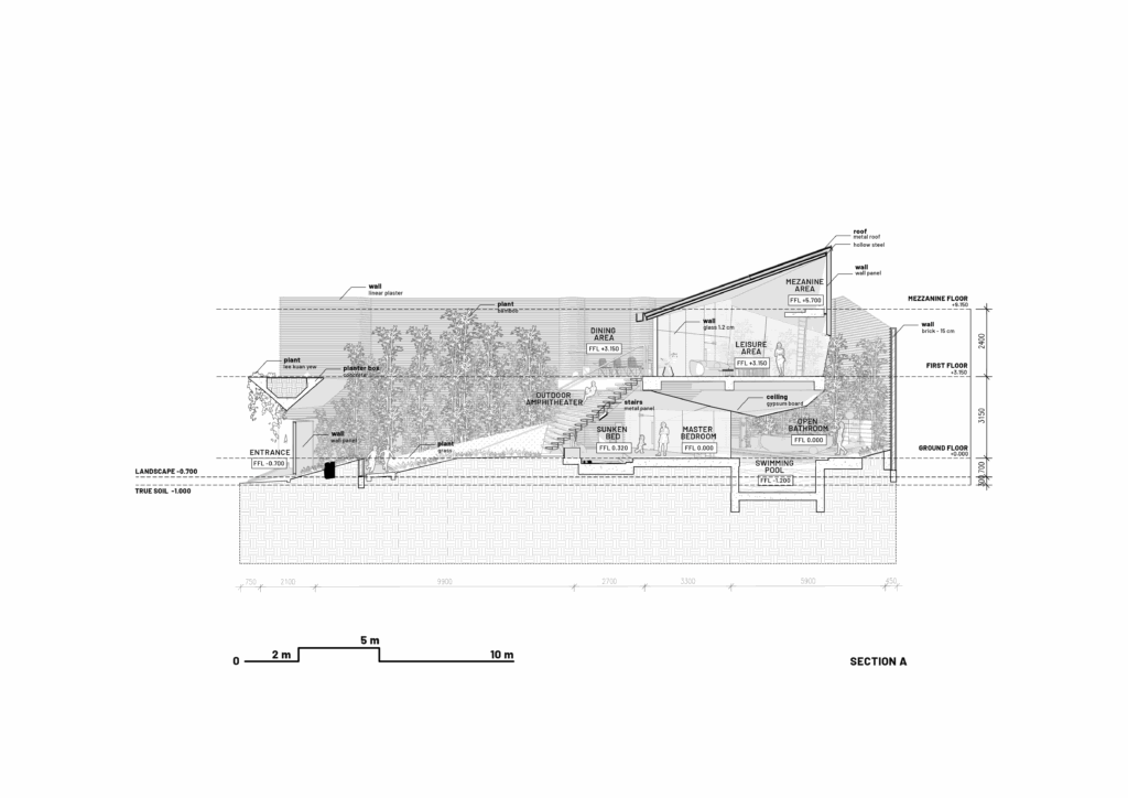
Folded Rooms Garden is a residential experiment in Bandung that rethinks the domestic interior through landscape, section, and permeability. Rather than organizing space through conventional partition walls, the project develops a continuous folded plane that merges circulation, floor, ceiling, and roof into a single architectural surface.
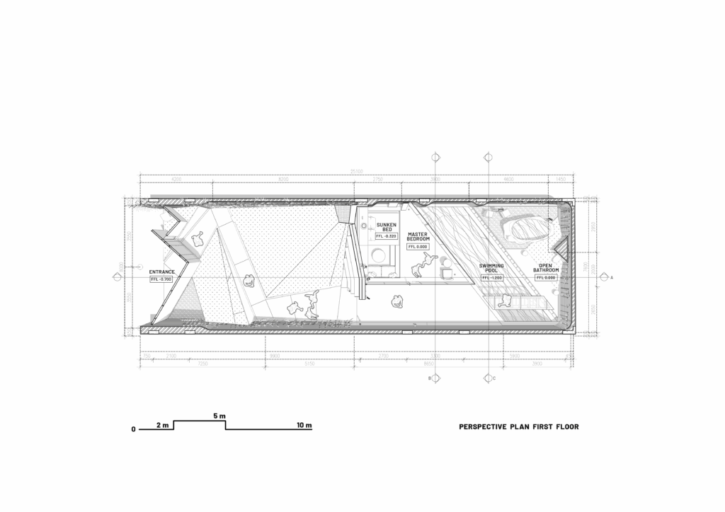
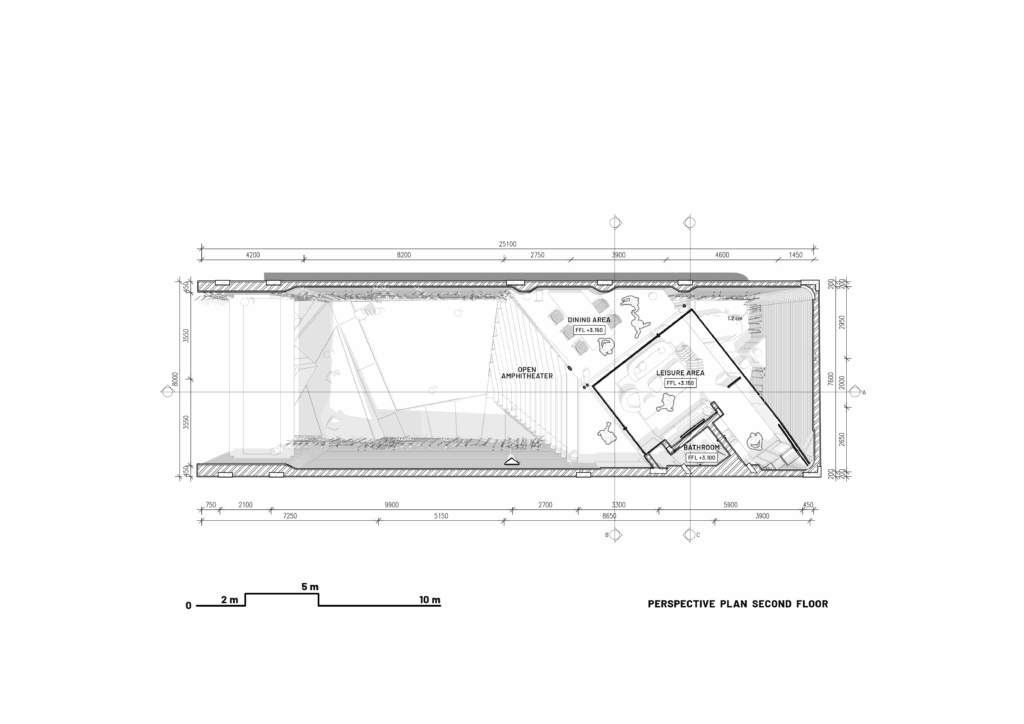
The house is shaped through a minimal formal language and a tectonic strategy of folding. Inserted into a compact urban site, this monolithic plane is bent, compressed, and layered to dissolve the boundary between built mass and open void. Privacy is not achieved through enclosure alone, but through shifts in level, creating a spatial sequence defined by thresholds, sectional transitions, and changing relationships to the garden.


At the entrance, a suspended planter forms a porous threshold that filters the transition from the surrounding city into a protected interior landscape. Above, the elevated fold accommodates a tatami-style bedroom alongside the living and dining spaces, extending the front garden into a more open and ventilated domestic realm. Below, the sunken private quarters open onto a pool and semi-outdoor bathroom, where bamboo planting reinforces a more inward and secluded atmosphere.






Beyond its spatial and formal experimentation, the project proposes a micro-urban ecological model. With 70% of the site preserved as permeable green area, the villa incorporates on-site rainwater absorption and positions private architecture as part of a broader urban hydrological system. In this sense, Folded Rooms Garden presents the small residential plot as a prototype for decentralized ecological intervention within the dense fabric of Indonesian cities.












