Civic Centre 1015 is a public facility that brings together an adult education centre, a language standardization consortium, and spaces for local associations on a triangular site in Barcelona’s Parliament district. The project is defined by the preserved frontage of the former Planell glass factory, built in 1913 on Carrer d’Anglesola, whose heritage-listed façades shape two sides of the plot and establish the terms of the intervention.


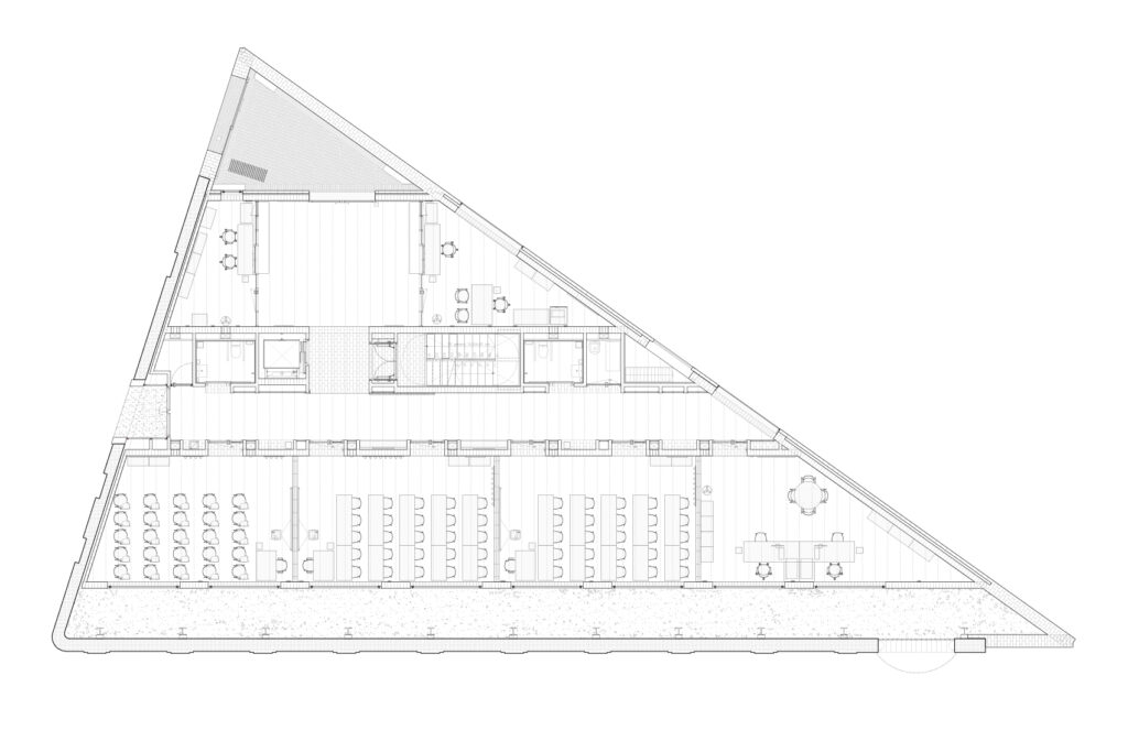
The building is conceived as an extension of the urban fabric rather than as an isolated object. Although the site’s triangular geometry and protected façades restrict its footprint, the project occupies the plot with precision, organizing the programme across four levels set back from the south-facing historic elevation. This setback creates an atrium that mediates between old and new, improving daylight access for the classrooms while functioning as both a thermal and acoustic buffer. At the northern end, a second narrow courtyard completes the geometry of the site and connects the building’s administrative spaces with the exterior.



Environmental performance is embedded in the section. The project relies on natural light, thermal inertia, and controlled air movement to reduce energy demand. In winter, the system limits heat loss caused by air renewal while recovering internal heat gains and drawing tempered air from the atrium. In summer, excess heat is dissipated through the movement of large volumes of air, driven exclusively by passive means. Because cross-ventilation between the courtyards would interfere with the programme and generate acoustic conflict, each occupied strip is separated by a vertical structural void that channels air upward toward solar chimneys. These chimneys define the building’s profile while giving it a light, transparent character.


Materially, the project seeks continuity with the industrial memory of the site. Ceramic surfaces are used to place the new construction in dialogue with the historic façade, not as contrast but as continuity. The intervention avoids monumentalizing the existing structure and instead integrates it into the building’s everyday architectural logic. Glass block is inserted into the enclosure to improve the lighting of the courtyards while recalling the legacy of Cristalleries Planell and its association with glass production.

The building’s energy strategy is based first on demand reduction and then on efficient production. Natural ventilation, daylight optimization, and the inertia of the load-bearing structure minimize operational needs, while geothermal systems provide the additional heating and cooling required to meet comfort standards. The result is a maximum energy consumption of 30 kW, approximately one third that of a conventional reference building. This low demand is complemented by on-site electricity generation through flexible photovoltaic panels integrated into the solar chimneys, allowing the building to approach nearly zero-energy performance.


Climate control is achieved without conventional air-conditioning. Instead, the building uses the structure’s thermal mass together with a carefully calibrated natural ventilation system. In winter, air movement is reduced and regulated according to CO2 levels generated by teaching activities. In summer, ventilation intensifies in order to evacuate internal heat gains and prevent overheating. Four solar chimneys operate simultaneously as roofscape and environmental engine, combining stack effect, Venturi effect, and greenhouse effect through their geometry and material assembly. Their pyramidal form is shaped by the summer path of the sun, translating environmental performance into architectural expression.












