Villa Montasser: Symetrical Reflections
Architect: Leopold Banchini Architects
Photographer: Rory Gardiner
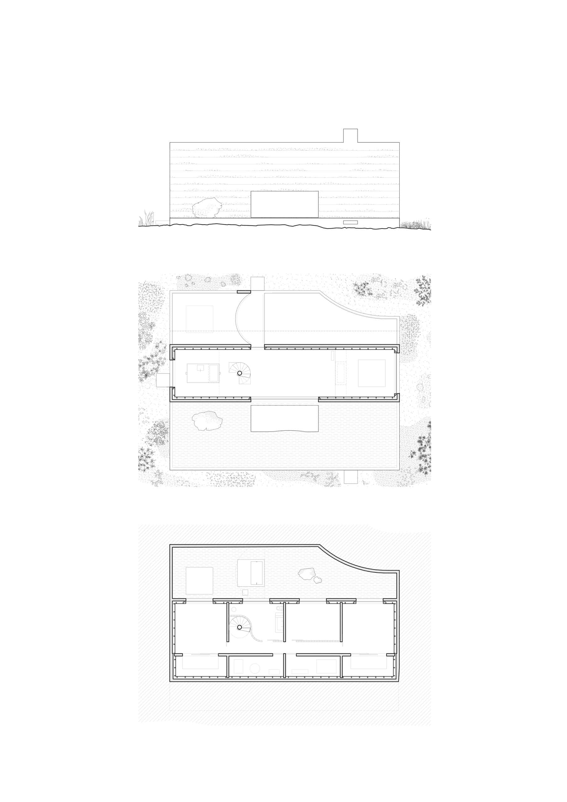
Ferdinand Hodler painted mountains reflected in Swiss lakes, again and again. He was obsessed with this double inverted landscape, constantly evolving with the changing sky and the movement created by the wind blowing on the water’s surface. In 1867, aged 14, he painted his first lakes and sold them to passing tourists. In 1918, fifty years later, he died in Geneva, leaving behind a few unfinished sketches of Mont-Blanc reflected in Lake Geneva, as seen from his apartment balcony. Villa Montasser sits beside the beautiful Lake Geneva, looking out at the Alps. As a reaction to the majestic landscape, the building tries to stay as simple and humble as possible. The long, plain façade is a blank canvas reflecting into a water basin of the same length. A singular long window opens onto a floating terrace, again of similar dimensions. The reflection of the chimney becomes the stairs, leading to the pool. An erratic block, carried by the ancient glaciers from the alps to the lake shore, sits upon the water surface. The main façade is a symetrcal reflection, a tribute to the horizontal line separating the looming mountains and reflective lake in Hodler’s work.
The long rectangular plan, highly constrained by building regulations, develops on three levels. While the ground floor living spaces largely open out to the surroundings, the underground bedrooms open to an enclosed, inaccessible patio, filled with a thin layer of rainwater collected from the roof. The light bounces off the two basins before entering the house, projecting its dancing reflections onto the wooden walls and ceiling.
